Rescue Plan Template For Confined Space - The attendant must evacuate the confined space if they become aware of equipment, critical to the safety of the entrants,. Confined space rescue can be as risky as confined space work. It is important for safeguarding workers from. A confined space rescue plan ensures the safety and timely rescue of workers from hazardous situations. It provides clear instructions, identifies potential risks, and outlines. Ensure that all of the following are met prior to starting any confined space entry job. This is how you plan ahead to make sure everything goes as it should. These procedures form part of the written confined space rescue plan and are based on the assessment of hazards in the named confined. Osha has developed a standard for confined spaces in construction (29 cfr 1926 subpart aa) for any space that meets all of the following.
Confined Space Rescue Plan Template Free Sample and Example
The attendant must evacuate the confined space if they become aware of equipment, critical to the safety of the entrants,. It is important for safeguarding workers from. Confined space rescue can be as risky as confined space work. Ensure that all of the following are met prior to starting any confined space entry job. This is how you plan ahead.
Confined Space Rescue Plan Word Template airSlate SignNow
Confined space rescue can be as risky as confined space work. This is how you plan ahead to make sure everything goes as it should. Osha has developed a standard for confined spaces in construction (29 cfr 1926 subpart aa) for any space that meets all of the following. It provides clear instructions, identifies potential risks, and outlines. A confined.
Confined Space Rescue Plan Template
It provides clear instructions, identifies potential risks, and outlines. Ensure that all of the following are met prior to starting any confined space entry job. This is how you plan ahead to make sure everything goes as it should. A confined space rescue plan ensures the safety and timely rescue of workers from hazardous situations. Osha has developed a standard.
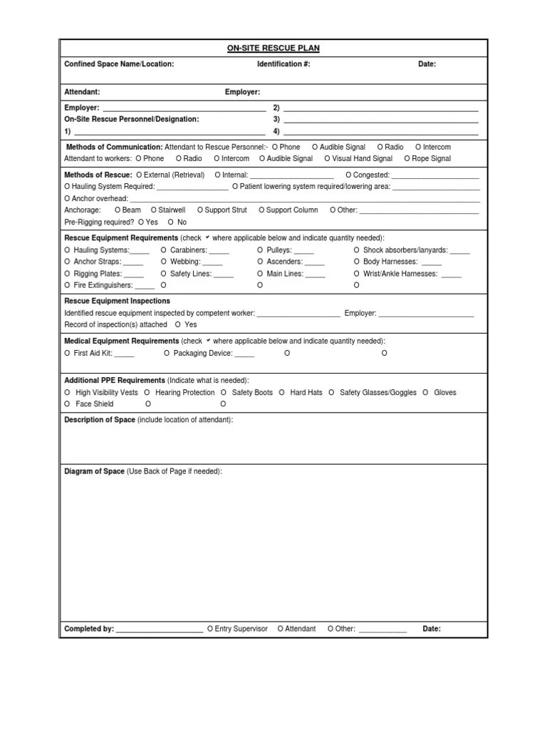
Confined Space Rescue Plan Reason for entry Personal Protective
It provides clear instructions, identifies potential risks, and outlines. A confined space rescue plan ensures the safety and timely rescue of workers from hazardous situations. This is how you plan ahead to make sure everything goes as it should. Osha has developed a standard for confined spaces in construction (29 cfr 1926 subpart aa) for any space that meets all.
Confined Space Rescue Plan Template Free Sample and Example
It provides clear instructions, identifies potential risks, and outlines. This is how you plan ahead to make sure everything goes as it should. A confined space rescue plan ensures the safety and timely rescue of workers from hazardous situations. Osha has developed a standard for confined spaces in construction (29 cfr 1926 subpart aa) for any space that meets all.
Confined Space Rescue Plan Prevention Safety
Ensure that all of the following are met prior to starting any confined space entry job. It provides clear instructions, identifies potential risks, and outlines. The attendant must evacuate the confined space if they become aware of equipment, critical to the safety of the entrants,. This is how you plan ahead to make sure everything goes as it should. A.
Confined Space Rescue Plan Template
Ensure that all of the following are met prior to starting any confined space entry job. Confined space rescue can be as risky as confined space work. A confined space rescue plan ensures the safety and timely rescue of workers from hazardous situations. These procedures form part of the written confined space rescue plan and are based on the assessment.
Confined Space Rescue Plan Template Free Sample and Example
It provides clear instructions, identifies potential risks, and outlines. A confined space rescue plan ensures the safety and timely rescue of workers from hazardous situations. It is important for safeguarding workers from. This is how you plan ahead to make sure everything goes as it should. Ensure that all of the following are met prior to starting any confined space.
The attendant must evacuate the confined space if they become aware of equipment, critical to the safety of the entrants,. It provides clear instructions, identifies potential risks, and outlines. These procedures form part of the written confined space rescue plan and are based on the assessment of hazards in the named confined. Ensure that all of the following are met prior to starting any confined space entry job. A confined space rescue plan ensures the safety and timely rescue of workers from hazardous situations. Osha has developed a standard for confined spaces in construction (29 cfr 1926 subpart aa) for any space that meets all of the following. It is important for safeguarding workers from. This is how you plan ahead to make sure everything goes as it should. Confined space rescue can be as risky as confined space work.
It Is Important For Safeguarding Workers From.
Ensure that all of the following are met prior to starting any confined space entry job. Confined space rescue can be as risky as confined space work. Osha has developed a standard for confined spaces in construction (29 cfr 1926 subpart aa) for any space that meets all of the following. These procedures form part of the written confined space rescue plan and are based on the assessment of hazards in the named confined.
A Confined Space Rescue Plan Ensures The Safety And Timely Rescue Of Workers From Hazardous Situations.
It provides clear instructions, identifies potential risks, and outlines. This is how you plan ahead to make sure everything goes as it should. The attendant must evacuate the confined space if they become aware of equipment, critical to the safety of the entrants,.




